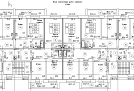
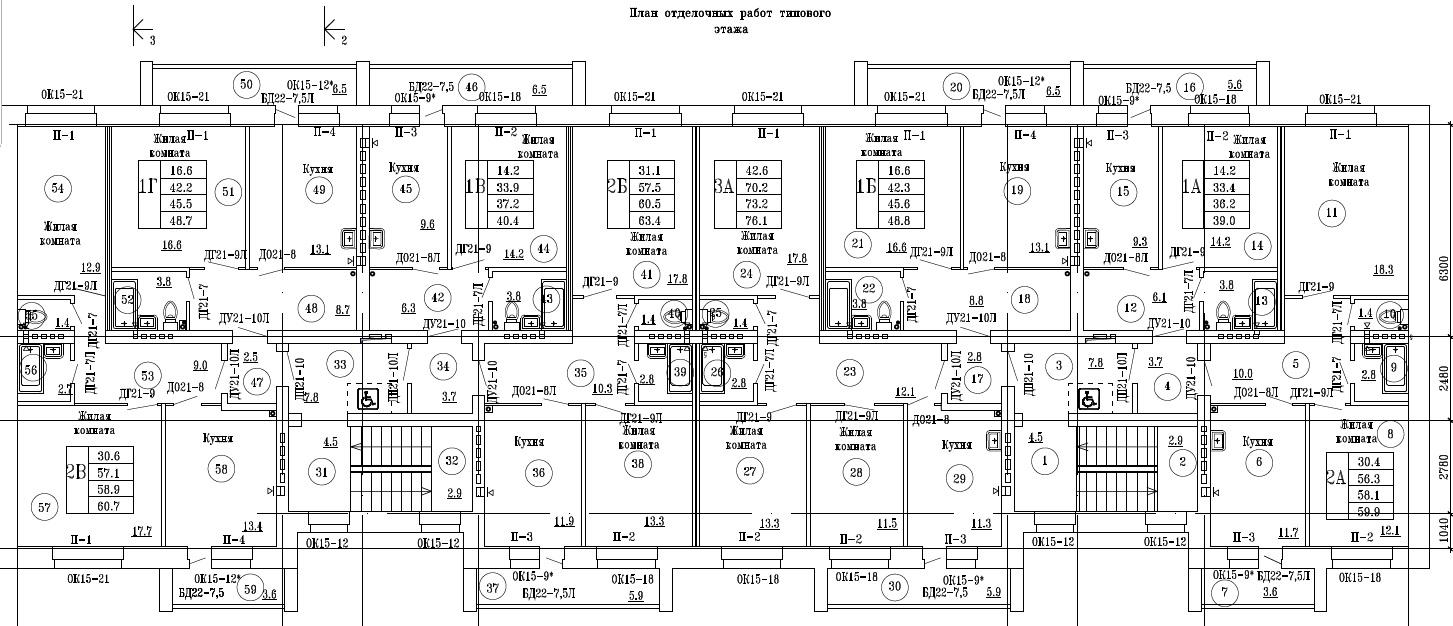
5-ти этажный 40 квартирный жилой дом по адреу: п.Вурнары, пер.Тракторный поз.18, Вурнарского муниципального округа Чувашской Респубики
С проектной декларацией и проектной документацией а также с ходом строительства можно ознакомиться на сайте наш.дом.рф
ссылка Тракторный поз.18 на наш.дом.рф
Планировка квартир 1 и типового этажей в
Разделе: ПРОЕКТЫ.ПЛАНИРОВКА КВАРТИР
